MG不朽情缘

联系MG不朽情缘

CONTACT US

    电话:0632-8876966
    手机:13863201793
    邮箱:tq17863299111@163.com
    地址:山东省枣庄市高新区宁波路769号

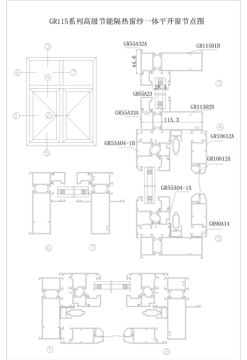
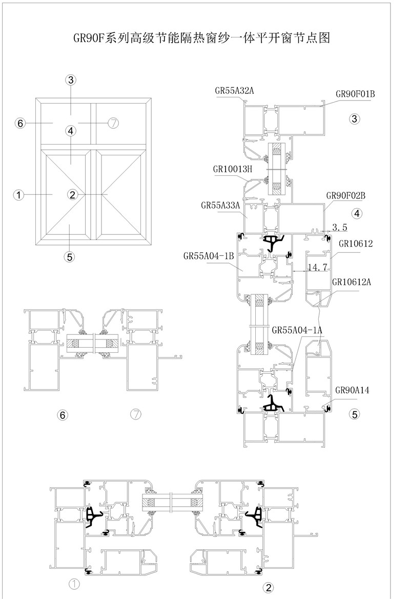
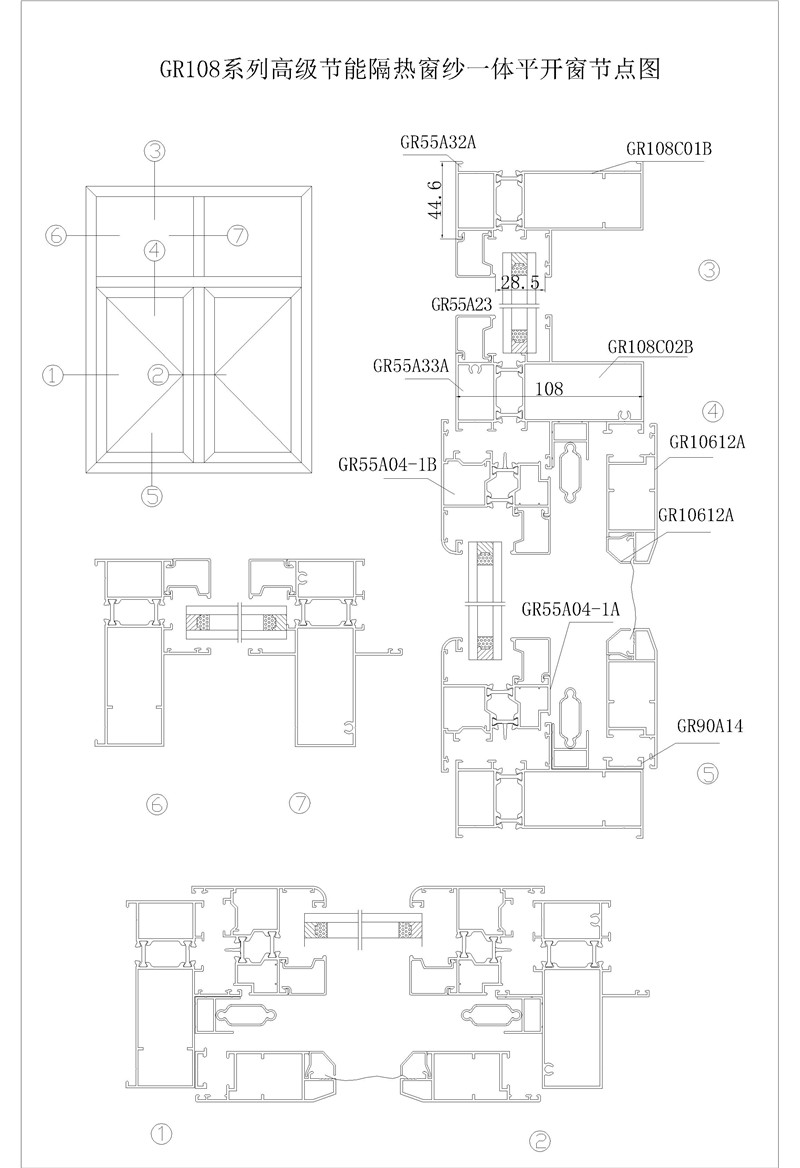
隔热断桥系列

当前位置:首页-产品展示-隔热断桥系列-90F隔热平开系列


产品名称:90F隔热平开系列

更新时间:2018-10-15 17:09:01

prev
next
MG不朽情缘(中国区)官方网站MG不朽情缘(中国区)官方网站MG不朽情缘(中国区)官方网站MG不朽情缘(中国区)官方网站MG不朽情缘(中国区)官方网站
上一条:118A隔热平开系列
下一条:108A隔热推拉系列
sitemap网站地图